
Maisons ossature bois

L'utilisation du bois dans la construction, commence dés le paléolithique.
C'est surement le plus vieux matériaux utilisé dans l'architecture, il est répertorié dans tous les éléments de la construction, planchers, murs, charpentes, toitures, menuiseries, éléments extérieurs :terrasses, balcons, escaliers, garde corps, etc...
C'est un matériaux naturel et noble, écologique avec des propriétés thermiques, en effet, le bois est 6 fois plus isolant que la brique et 15 fois plus que le béton. Grâce à l'étanchéité à l'air des constructions, il n'y a plus de courants d'air. Ces facteurs font du bâtiment bois un lieu de vie confortable et chaleureux, dans lequel on se sent bien.
Performances thermiques, isolation acoustique, résistance sismique, légèreté,
solidité, préfabrication : la construction en bois possède des atouts techniques
considérables.
De plus, bien formés aux techniques de mise en œuvre, les charpentiers ont les
bons outils et connaissent les bonnes pratiques pour fabriquer des parois
étanches à l’air et à l’eau.
Mon amour pour ce matériaux, ma connaissance de la matière, sa mise en œuvre,
ses avantages, ses défauts, son aspect, sa couleur, son odeur, me donne un intérêt
particulier à proposer aujourd'hui le choix de vivre dans une maison à ossature bois.
Habitation réalisée en 2005 , chemin de ceinture de TALARIS à
LACANAU
Habitation sur le lotissement du village cheval , 2008

Habitation ossature bois , lotissement du Baganais 2017

Projet de 2 logements de 180,00 m2 , Lacanau Océan 2023




Projet d' Habitation ossature bois , Bord du lac de Lacanau , lieu dit Carreyre 2024


PLAN REZ DE CHAUSSÉE



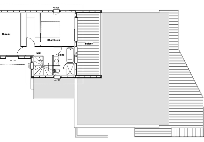
PLAN ÉTAGE


Projet d' Habitation ossature bois , Lacanau Océan rue Léon Dominique 2023





Surélévation et rénovation d'une habitation , Lacanau médoc
2016

État des lieux avant travaux



Maison à ossature bois , gringue nord réalisée en 2023.

PLAN REZ DE CHAUSSÉE

PLAN ÉTAGE







VIDÉO
Rénovation, agrandissement d'une habitation , et réalisation d'une dépendance, rue VOLTAIRE à LACANAU Océan
2021








VIDÉO
Démolition partielle, rénovation et agrandissement d'une habitation allée de la corniche du lac
Lieu dit "Carreyre" LACANAU
2017

PLAN REZ DE JARDIN EXISTANT
PLAN MAISON EXISTANT

PLAN REZ DE CHAUSSÉEEXISTANT


PHOTO MAISON EXISTANT AVANT TRANSFORMATION
PHOTO MAISON EXISTANT AVANT TRANSFORMATION

PLAN REZ DE JARDIN PROJET
PROJET

PLAN REZ DE CHAUSSÉE PROJET

PLAN ÉTAGE PROJET








Agrandissement d'une habitation existante en ossature bois, Rue Albert LAPUYADE - LACANAU Océan
2019

HABITATION EXISTANTE

PHOTO EXISTANT

PHOTO EXISTANT

PHOTO EXISTANT

PROJET

PHOTO EXISTANT

PHOTO PROJET

PHOTO PROJET

PHOTO PROJET
Rénovation et Agrandissement avec surélévation d'une habitation existante en ossature bois, Rue Montaigne LACANAU Océan
2021


MAISON EXISTANTE



PROJET

PLAN REZ DE CHAUSSÉE PROJET

PLAN ÉTAGE PROJET
IMAGE PROJET
IMAGE PROJET
IMAGE PROJET
IMAGE PROJET
IMAGE PROJET
IMAGE PROJET









VIDÉO PROJET
Réalisation d'une habitation à ossature bois, Chemin du port - LACANAU
2019





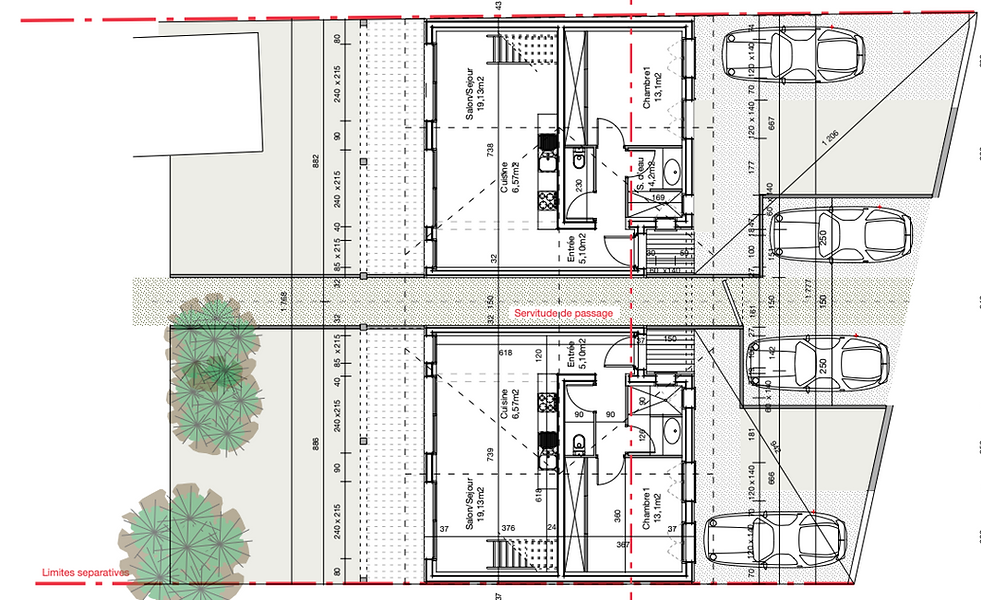
Réalisation de 2 habitations à ossature bois, rue Auguste RENOIR , LACANAU Océan
2021

PLAN REZ DE CHAUSSÉE

PLAN ÉTAGE






VIDÉO
Réalisation de logements à ossature bois, Route de l'Atlantique "LE GUGA" , LACANAU Océan
2021






























